Elected Officials
Courts
Departments
Initiatives
Open Government
About
Login / Register
Home
/
Property & Tax Records
/
Property Records
/
Property & Tax Search
/
Parcel Profile
/
Sketches
Search for Another Parcel
Parcel Profile
Historical Card
Sketches
Photos
Tax Map
Taxes
Print View
Address: 3925 NASH RD
Parcel: 39008029001100
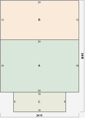
Parcel Sketches
Residential Card 1
A
MAIN
384 square feet
B
1S FR ONE STORY FRAME 1S FR ONE STORY FRAME
288 square feet
C
OFP OPEN FRAME PORCH
96 square feet