Elected Officials
Courts
Departments
Initiatives
Open Government
About
Login / Register
Home
/
Property & Tax Records
/
Property Records
/
Property & Tax Search
/
Parcel Profile
/
Sketches
Search for Another Parcel
Parcel Profile
Historical Card
Sketches
Photos
Tax Map
Taxes
Print View
Address: 13088 W LAKE RD
Parcel: 39009026002000
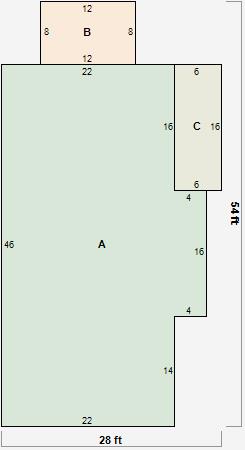
Parcel Sketches
Residential Card 1
A
MAIN
1076 square feet
B
WDDCK WOOD DECKS
96 square feet
C
OFP OPEN FRAME PORCH
96 square feet