Elected Officials
Courts
Departments
Initiatives
Open Government
About
Login / Register
Home
/
Property & Tax Records
/
Property Records
/
Property & Tax Search
/
Parcel Profile
/
Sketches
Search for Another Parcel
Parcel Profile
Historical Card
Sketches
Photos
Tax Map
Taxes
Print View
Address: 13688 W LAKE RD
Parcel: 39010036000700
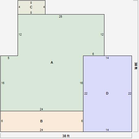
Parcel Sketches
Residential Card 1
A
MAIN
720 square feet
B
1S FR ONE STORY FRAME
324 square feet
C
1S FR ONE STORY FRAME
280 square feet
D
OFP OPEN FRAME PORCH
168 square feet
E
WDDCK WOOD DECKS
220 square feet
F
CANPY CANOPY
36 square feet
G
OFP OPEN FRAME PORCH
24 square feet
Residential Card 2
A
MAIN
684 square feet
B
OFP OPEN FRAME PORCH
144 square feet
C
EFP ENCL FRAME PORCH
32 square feet
D
FR GR FRAME GARAGE
308 square feet