Elected Officials
Courts
Departments
Initiatives
Open Government
About
Login / Register
Home
/
Property & Tax Records
/
Property Records
/
Property & Tax Search
/
Parcel Profile
/
Sketches
Search for Another Parcel
Parcel Profile
Historical Card
Sketches
Photos
Tax Map
Taxes
Print View
Address: 13838 RIDGE RD
Parcel: 39014041002600
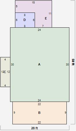
Parcel Sketches
Residential Card 1
A
MAIN
720 square feet
B
OFP OPEN FRAME PORCH
198 square feet
C
FRBAY FRAME BAY FRBAY FRAME BAY
48 square feet
D
EFP ENCL FRAME PORCH
48 square feet
E
WDDCK WOOD DECKS
117 square feet