Elected Officials
Courts
Departments
Initiatives
Open Government
About
Login / Register
Home
/
Property & Tax Records
/
Property Records
/
Property & Tax Search
/
Parcel Profile
/
Sketches
Search for Another Parcel
Parcel Profile
Historical Card
Sketches
Photos
Tax Map
Taxes
Print View
Address: 13988 CHESTNUT ST
Parcel: 39015044003700
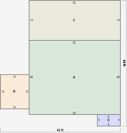
Parcel Sketches
Residential Card 1
A
MAIN
832 square feet
B
OFP OPEN FRAME PORCH
120 square feet
C
UNFIN BSMT BASEMENT UNFINISHED 1S FR ONE STORY FRAME
448 square feet
D
OFP OPEN FRAME PORCH
32 square feet