Elected Officials
Courts
Departments
Initiatives
Open Government
About
Login / Register
Home
/
Property & Tax Records
/
Property Records
/
Property & Tax Search
/
Parcel Profile
/
Sketches
Search for Another Parcel
Parcel Profile
Historical Card
Sketches
Photos
Tax Map
Taxes
Print View
Address: 4270 NASH RD
Parcel: 39016051000500
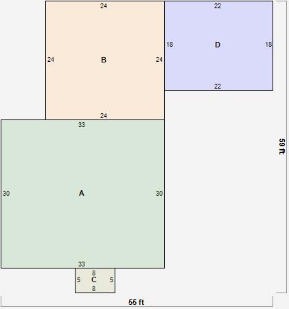
Parcel Sketches
Residential Card 1
A
MAIN
990 square feet
B
EFP ENCL FRAME PORCH
576 square feet
C
MA STOOP/TERR MAS STOOP
40 square feet
D
FR GR FRAME GARAGE
396 square feet