Elected Officials
Courts
Departments
Initiatives
Open Government
About
Login / Register
Home
/
Property & Tax Records
/
Property Records
/
Property & Tax Search
/
Parcel Profile
/
Sketches
Search for Another Parcel
Parcel Profile
Historical Card
Sketches
Photos
Tax Map
Taxes
Print View
Address: 11555 NEIGER RD
Parcel: 39019058000700
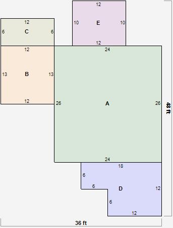
Parcel Sketches
Residential Card 1
A
MAIN
624 square feet
B
1S FR ONE STORY FRAME
156 square feet
C
EFP ENCL FRAME PORCH
72 square feet
D
WDDCK WOOD DECKS
180 square feet
E
WDDCK WOOD DECKS
120 square feet