Address: 11978 MAIN ST   Parcel: 39042011001000

Parcel Sketches


Residential Card 1

Residential Card 1
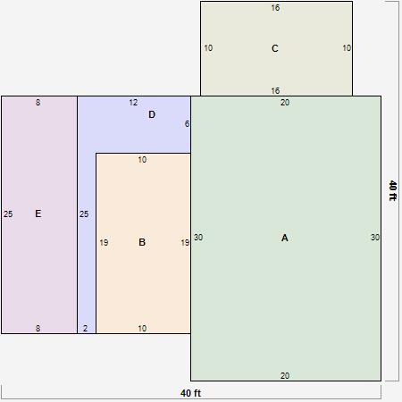
AMAIN600 square feet
BUNFIN BSMT BASEMENT UNFINISHED 1S FR ONE STORY FRAME 1S FR ONE STORY FRAME 190 square feet
C FR UT FRAME UTILITY BUILDING 160 square feet
D FROVR FRAME OVERHANG 1S FR ONE STORY FRAME 110 square feet
E OFP OPEN FRAME PORCH 200 square feet