Elected Officials
Courts
Departments
Initiatives
Open Government
About
Login / Register
Home
/
Property & Tax Records
/
Property Records
/
Property & Tax Search
/
Parcel Profile
/
Sketches
Search for Another Parcel
Parcel Profile
Historical Card
Sketches
Photos
Tax Map
Taxes
Print View
Address: 5175 ACADEMY ST
Parcel: 39047016001100
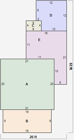
Parcel Sketches
Residential Card 1
A
MAIN
420 square feet
B
OFP OPEN FRAME PORCH
171 square feet
C
OFP OPEN FRAME PORCH
24 square feet
D
MA_PT CONC/MAS PATIO
136 square feet
E
1S FR ONE STORY FRAME
226 square feet