Address: 7771 PAGAN RD   Parcel: 40001006002100

Parcel Sketches


Residential Card 1

Residential Card 1
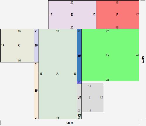
AMAIN608 square feet
B FROVR FRAME OVERHANG 48 square feet
C 1S FR ONE STORY FRAME 224 square feet
D 1S FR ONE STORY FRAME 1S FR ONE STORY FRAME 28 square feet
E WDDCK WOOD DECKS 240 square feet
F EFP ENCL FRAME PORCH 216 square feet
G 1S FR ONE STORY FRAME AT FN ATTIC-FINISHED 572 square feet
H 1S FR ONE STORY FRAME 1S FR ONE STORY FRAME 46 square feet
I WDDCK WOOD DECKS 132 square feet
J WDDCK WOOD DECKS FROVR FRAME OVERHANG 24 square feet
K FROVR FRAME OVERHANG 6 square feet