Elected Officials
Courts
Departments
Initiatives
Open Government
About
Login / Register
Home
/
Property & Tax Records
/
Property Records
/
Property & Tax Search
/
Parcel Profile
/
Sketches
Search for Another Parcel
Parcel Profile
Historical Card
Sketches
Photos
Tax Map
Taxes
Print View
Address: 172 HAROLD BLVD
Parcel: 40011036000100
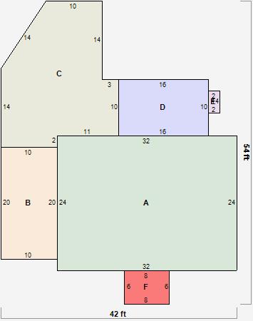
Parcel Sketches
Residential Card 1
A
MAIN
768 square feet
B
1S FR ONE STORY FRAME
200 square feet
C
WDDCK WOOD DECKS
434 square feet
D
EFP ENCL FRAME PORCH
160 square feet
E
MA STOOP/TERR MAS STOOP
8 square feet
F
MA STOOP/TERR MAS STOOP
48 square feet