Elected Officials
Courts
Departments
Initiatives
Open Government
About
Login / Register
Home
/
Property & Tax Records
/
Property Records
/
Property & Tax Search
/
Parcel Profile
/
Sketches
Search for Another Parcel
Parcel Profile
Historical Card
Sketches
Photos
Tax Map
Taxes
Print View
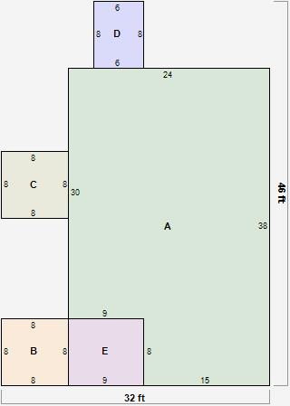
Address: 1791 TOWNHALL RD W
Parcel: 40021101000800
Parcel Sketches
Residential Card 1
A
MAIN
840 square feet
B
OMP OPEN MASONRY PORCH
64 square feet
C
OMP OPEN MASONRY PORCH
64 square feet
D
OFP OPEN FRAME PORCH
48 square feet
E
1S FR ONE STORY FRAME
72 square feet