Elected Officials
Courts
Departments
Initiatives
Open Government
About
Login / Register
Home
/
Property & Tax Records
/
Property Records
/
Property & Tax Search
/
Parcel Profile
/
Sketches
Search for Another Parcel
Parcel Profile
Historical Card
Sketches
Photos
Tax Map
Taxes
Print View
Address: 9390 DONATION RD
Parcel: 40022095000400
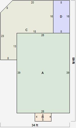
Parcel Sketches
Residential Card 1
A
MAIN
1014 square feet
B
MA STOOP/TERR MAS STOOP
32 square feet
C
1S FR ONE STORY FRAME
502 square feet
D
WDDCK WOOD DECKS
128 square feet