Elected Officials
Courts
Departments
Initiatives
Open Government
About
Login / Register
Home
/
Property & Tax Records
/
Property Records
/
Property & Tax Search
/
Parcel Profile
/
Sketches
Search for Another Parcel
Parcel Profile
Historical Card
Sketches
Photos
Tax Map
Taxes
Print View
Address: 9651 HAMOT RD
Parcel: 40026103004900
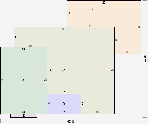
Parcel Sketches
Residential Card 1
A
MAIN
280 square feet
B
EFP ENCL FRAME PORCH
240 square feet
C
1S FR ONE STORY FRAME AT UN ATTIC-UNFINISHED
520 square feet
D
OFP OPEN FRAME PORCH
60 square feet
E
FRBAY FRAME BAY
8 square feet