Elected Officials
Courts
Departments
Initiatives
Open Government
About
Login / Register
Home
/
Property & Tax Records
/
Property Records
/
Property & Tax Search
/
Parcel Profile
/
Sketches
Search for Another Parcel
Parcel Profile
Historical Card
Sketches
Photos
Tax Map
Taxes
Print View
Address: 3003 FLOWER RD
Parcel: 40031081502600
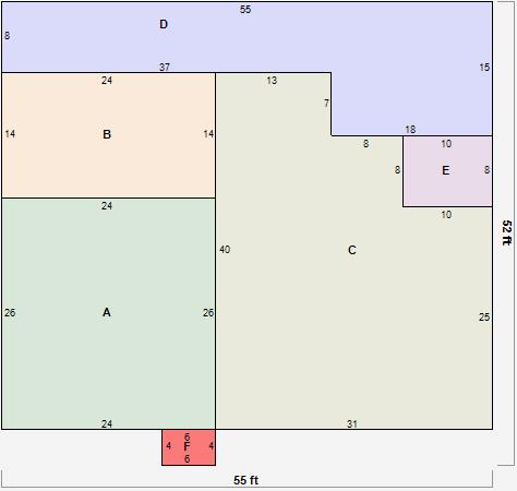
Parcel Sketches
Residential Card 1
A
MAIN
624 square feet
B
UNFIN BSMT BASEMENT UNFINISHED 1S FR ONE STORY FRAME 1S FR ONE STORY FRAME
336 square feet
C
UNFIN BSMT BASEMENT UNFINISHED 1S FR ONE STORY FRAME AT UN ATTIC-UNFINISHED
1034 square feet
D
MA_PT CONC/MAS PATIO
566 square feet
E
EMP ENCL MASONRY PORCH
80 square feet
F
MA STOOP/TERR MAS STOOP
24 square feet