Elected Officials
Courts
Departments
Initiatives
Open Government
About
Login / Register
Home
/
Property & Tax Records
/
Property Records
/
Property & Tax Search
/
Parcel Profile
/
Sketches
Search for Another Parcel
Parcel Profile
Historical Card
Sketches
Photos
Tax Map
Taxes
Print View
Address: 10 JOHN ST
Parcel: 41003005000401
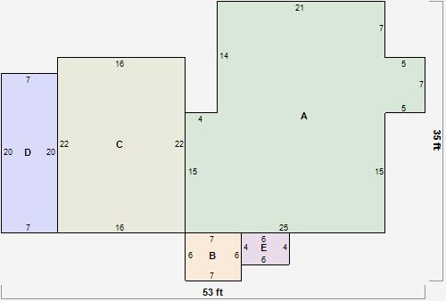
Parcel Sketches
Residential Card 1
A
MAIN
704 square feet
B
WDDCK WOOD DECKS
42 square feet
C
FR GR FRAME GARAGE
352 square feet
D
FR UT FRAME UTILITY BUILDING
140 square feet
E
EFP ENCL FRAME PORCH
24 square feet