Elected Officials
Courts
Departments
Initiatives
Open Government
About
Login / Register
Home
/
Property & Tax Records
/
Property Records
/
Property & Tax Search
/
Parcel Profile
/
Sketches
Search for Another Parcel
Parcel Profile
Historical Card
Sketches
Photos
Tax Map
Taxes
Print View
Address: 71 PUTNAM ST
Parcel: 41006006002500
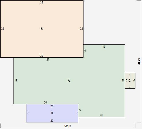
Parcel Sketches
Residential Card 1
A
MAIN
944 square feet
B
FR GR FRAME GARAGE
704 square feet
C
CANPY CANOPY
24 square feet
D
MA_PT CONC/MAS PATIO
140 square feet