Elected Officials
Courts
Departments
Initiatives
Open Government
About
Login / Register
Home
/
Property & Tax Records
/
Property Records
/
Property & Tax Search
/
Parcel Profile
/
Sketches
Search for Another Parcel
Parcel Profile
Historical Card
Sketches
Photos
Tax Map
Taxes
Print View
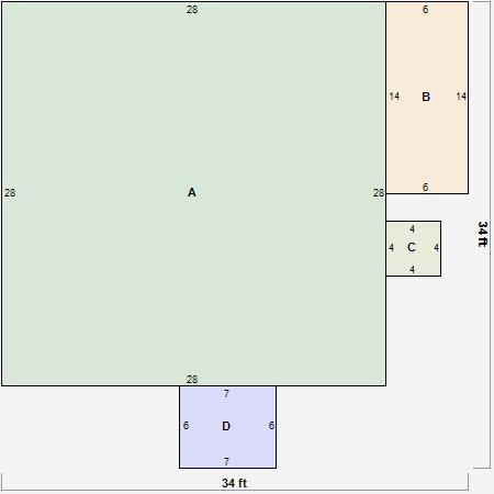
Address: 39 PUTNAM ST
Parcel: 41006006003800
Parcel Sketches
Residential Card 1
A
MAIN
784 square feet
B
MA_PT CONC/MAS PATIO
84 square feet
C
EFP ENCL FRAME PORCH
16 square feet
D
MA STOOP/TERR MAS STOOP
42 square feet