Elected Officials
Courts
Departments
Initiatives
Open Government
About
Login / Register
Home
/
Property & Tax Records
/
Property Records
/
Property & Tax Search
/
Parcel Profile
/
Sketches
Search for Another Parcel
Parcel Profile
Historical Card
Sketches
Photos
Tax Map
Taxes
Print View
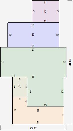
Address: 16 WARDEN ST
Parcel: 41006013001500
Parcel Sketches
Residential Card 1
A
MAIN
504 square feet
B
OFP OPEN FRAME PORCH
171 square feet
C
1S FR ONE STORY FRAME
48 square feet
D
UNFIN BSMT BASEMENT UNFINISHED 1S FR ONE STORY FRAME AT UN ATTIC-UNFINISHED
210 square feet
E
FR UT FRAME UTILITY BUILDING
99 square feet