Elected Officials
Courts
Departments
Initiatives
Open Government
About
Login / Register
Home
/
Property & Tax Records
/
Property Records
/
Property & Tax Search
/
Parcel Profile
/
Sketches
Search for Another Parcel
Parcel Profile
Historical Card
Sketches
Photos
Tax Map
Taxes
Print View
Address: 17 PUTNAM ST
Parcel: 41006014001400
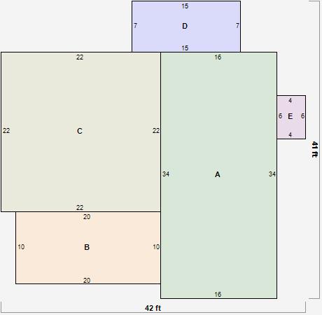
Parcel Sketches
Residential Card 1
A
MAIN
544 square feet
B
OFP OPEN FRAME PORCH
200 square feet
C
1S FR ONE STORY FRAME 1/2FR FRAME HALF-STORY
484 square feet
D
1S FR ONE STORY FRAME
105 square feet
E
MA STOOP/TERR MAS STOOP
24 square feet