Elected Officials
Courts
Departments
Initiatives
Open Government
About
Login / Register
Home
/
Property & Tax Records
/
Property Records
/
Property & Tax Search
/
Parcel Profile
/
Sketches
Search for Another Parcel
Parcel Profile
Historical Card
Sketches
Photos
Tax Map
Taxes
Print View
Address: 52 E HIGH ST
Parcel: 41011041000400
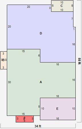
Parcel Sketches
Residential Card 1
A
MAIN
706 square feet
B
FRBAY FRAME BAY
24 square feet
C
OFP OPEN FRAME PORCH
50 square feet
D
1S FR ONE STORY FRAME
676 square feet
E
OFP OPEN FRAME PORCH
160 square feet
F
FRBAY FRAME BAY
24 square feet