Address: 19 BRIDGE ST   Parcel: 41012048001800

Parcel Sketches


Residential Card 1

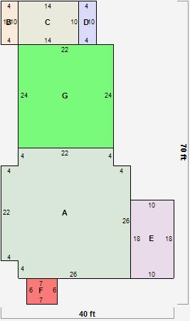
Residential Card 1
AMAIN852 square feet
B EFP ENCL FRAME PORCH 40 square feet
C EFP ENCL FRAME PORCH EFP ENCL FRAME PORCH 140 square feet
D WDDCK WOOD DECKS 40 square feet
E EFP ENCL FRAME PORCH EFP ENCL FRAME PORCH 180 square feet
F OFP OPEN FRAME PORCH 42 square feet
G 1S FR ONE STORY FRAME 1/2FR FRAME HALF-STORY 528 square feet