Elected Officials
Courts
Departments
Initiatives
Open Government
About
Login / Register
Home
/
Property & Tax Records
/
Property Records
/
Property & Tax Search
/
Parcel Profile
/
Sketches
Search for Another Parcel
Parcel Profile
Historical Card
Sketches
Photos
Tax Map
Taxes
Print View
Address: 77 BRIDGE ST
Parcel: 41013050000400
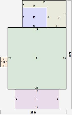
Parcel Sketches
Residential Card 1
A
MAIN
600 square feet
B
CANPY CANOPY
12 square feet
C
WDDCK WOOD DECKS
118 square feet
D
EFP ENCL FRAME PORCH
80 square feet
E
OFP OPEN FRAME PORCH
144 square feet