Elected Officials
Courts
Departments
Initiatives
Open Government
About
Login / Register
Home
/
Property & Tax Records
/
Property Records
/
Property & Tax Search
/
Parcel Profile
/
Sketches
Search for Another Parcel
Parcel Profile
Historical Card
Sketches
Photos
Tax Map
Taxes
Print View
Address: 21 KILBURN ST
Parcel: 41016087000800
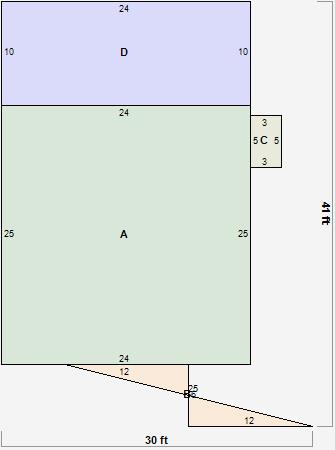
Parcel Sketches
Residential Card 1
A
MAIN
600 square feet
B
EFP ENCL FRAME PORCH
72 square feet
C
MA_PT CONC/MAS PATIO CANPY CANOPY
15 square feet
D
1S FR ONE STORY FRAME
240 square feet