Elected Officials
Courts
Departments
Initiatives
Open Government
About
Login / Register
Home
/
Property & Tax Records
/
Property Records
/
Property & Tax Search
/
Parcel Profile
/
Sketches
Search for Another Parcel
Parcel Profile
Historical Card
Sketches
Photos
Tax Map
Taxes
Print View
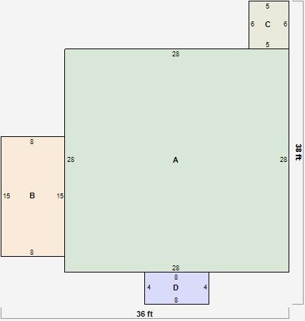
Address: 110 N MAIN ST
Parcel: 42002002001000
Parcel Sketches
Residential Card 1
A
MAIN
784 square feet
B
OFP OPEN FRAME PORCH
120 square feet
C
EFP ENCL FRAME PORCH
30 square feet
D
1S FR ONE STORY FRAME
32 square feet