Elected Officials
Courts
Departments
Initiatives
Open Government
About
Login / Register
Home
/
Property & Tax Records
/
Property Records
/
Property & Tax Search
/
Parcel Profile
/
Sketches
Search for Another Parcel
Parcel Profile
Historical Card
Sketches
Photos
Tax Map
Taxes
Print View
Address: 7 MURRAY RD
Parcel: 42002002003100
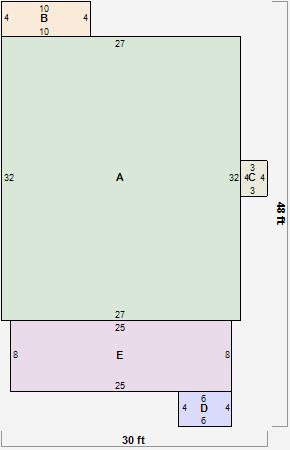
Parcel Sketches
Residential Card 1
A
MAIN
864 square feet
B
EFP ENCL FRAME PORCH
40 square feet
C
OFP OPEN FRAME PORCH
12 square feet
D
OFP OPEN FRAME PORCH
24 square feet
E
EFP ENCL FRAME PORCH
200 square feet