Elected Officials
Courts
Departments
Initiatives
Open Government
About
Login / Register
Home
/
Property & Tax Records
/
Property Records
/
Property & Tax Search
/
Parcel Profile
/
Sketches
Search for Another Parcel
Parcel Profile
Historical Card
Sketches
Photos
Tax Map
Taxes
Print View
Address: 62 64 N MAIN STREET
Parcel: 42007015004100
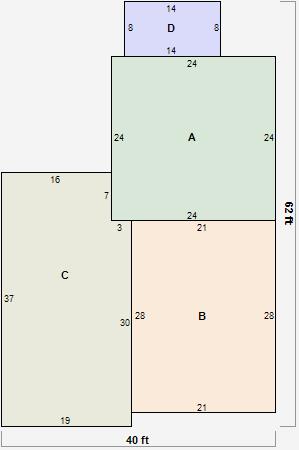
Parcel Sketches
Residential Card 1
A
MAIN
576 square feet
B
UNFIN BSMT BASEMENT UNFINISHED 1S FR ONE STORY FRAME 1/2FR FRAME HALF-STORY
588 square feet
C
1S FR ONE STORY FRAME
682 square feet
D
EFP ENCL FRAME PORCH
112 square feet