Elected Officials
Courts
Departments
Initiatives
Open Government
About
Login / Register
Home
/
Property & Tax Records
/
Property Records
/
Property & Tax Search
/
Parcel Profile
/
Sketches
Search for Another Parcel
Parcel Profile
Historical Card
Sketches
Photos
Tax Map
Taxes
Print View
Address: 71 W HIGH ST
Parcel: 42007017000900
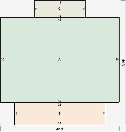
Parcel Sketches
Residential Card 1
A
MAIN
1260 square feet
B
OFP OPEN FRAME PORCH
256 square feet
C
EFP ENCL FRAME PORCH
108 square feet