Elected Officials
Courts
Departments
Initiatives
Open Government
About
Login / Register
Home
/
Property & Tax Records
/
Property Records
/
Property & Tax Search
/
Parcel Profile
/
Sketches
Search for Another Parcel
Parcel Profile
Historical Card
Sketches
Photos
Tax Map
Taxes
Print View
Address: 23 SOUTH ST
Parcel: 42007025001500
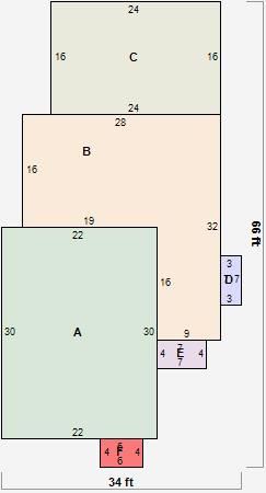
Parcel Sketches
Residential Card 1
A
MAIN
660 square feet
B
UNFIN BSMT BASEMENT UNFINISHED 1S FR ONE STORY FRAME
592 square feet
C
1S FR ONE STORY FRAME
384 square feet
D
UNFIN BSMT BASEMENT UNFINISHED FRBAY FRAME BAY
21 square feet
E
OFP OPEN FRAME PORCH
28 square feet
F
OFP OPEN FRAME PORCH
24 square feet