Elected Officials
Courts
Departments
Initiatives
Open Government
About
Login / Register
Home
/
Property & Tax Records
/
Property Records
/
Property & Tax Search
/
Parcel Profile
/
Sketches
Search for Another Parcel
Parcel Profile
Historical Card
Sketches
Photos
Tax Map
Taxes
Print View
Address: 62 W HIGH ST
Parcel: 42007026000100
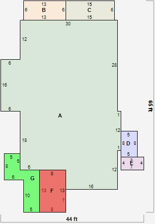
Parcel Sketches
Residential Card 1
A
MAIN
1688 square feet
B
FR UT FRAME UTILITY BUILDING
78 square feet
C
EFP ENCL FRAME PORCH
90 square feet
D
1S FR ONE STORY FRAME
40 square feet
E
EFP ENCL FRAME PORCH
28 square feet
F
OFP OPEN FRAME PORCH
104 square feet
G
UNFIN BSMT BASEMENT UNFINISHED 1S FR ONE STORY FRAME 1S FR ONE STORY FRAME AT UN ATTIC-UNFINISHED
108 square feet