Elected Officials
Courts
Departments
Initiatives
Open Government
About
Login / Register
Home
/
Property & Tax Records
/
Property Records
/
Property & Tax Search
/
Parcel Profile
/
Sketches
Search for Another Parcel
Parcel Profile
Historical Card
Sketches
Photos
Tax Map
Taxes
Print View
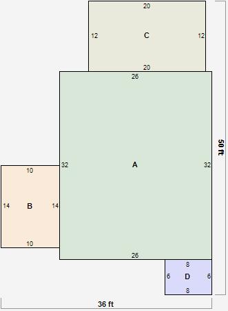
Address: 34 FIFTH AVE
Parcel: 42009028001600
Parcel Sketches
Residential Card 1
A
MAIN
832 square feet
B
1S FR ONE STORY FRAME
140 square feet
C
UNFIN BSMT BASEMENT UNFINISHED 1S FR ONE STORY FRAME
240 square feet
D
OFP OPEN FRAME PORCH
48 square feet