Elected Officials
Courts
Departments
Initiatives
Open Government
About
Login / Register
Home
/
Property & Tax Records
/
Property Records
/
Property & Tax Search
/
Parcel Profile
/
Sketches
Search for Another Parcel
Parcel Profile
Historical Card
Sketches
Photos
Tax Map
Taxes
Print View
Address: 3 WASHINGTON ST
Parcel: 42009033001800
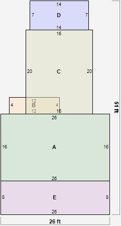
Parcel Sketches
Residential Card 1
A
MAIN
416 square feet
B
WDDCK WOOD DECKS
48 square feet
C
UNFIN BSMT BASEMENT UNFINISHED 1S FR ONE STORY FRAME 1/2FR FRAME HALF-STORY
320 square feet
D
1S FR ONE STORY FRAME
98 square feet
E
OFP OPEN FRAME PORCH
208 square feet