Elected Officials
Courts
Departments
Initiatives
Open Government
About
Login / Register
Home
/
Property & Tax Records
/
Property Records
/
Property & Tax Search
/
Parcel Profile
/
Sketches
Search for Another Parcel
Parcel Profile
Historical Card
Sketches
Photos
Tax Map
Taxes
Print View
Address: 104 S MAIN ST
Parcel: 42015072000500
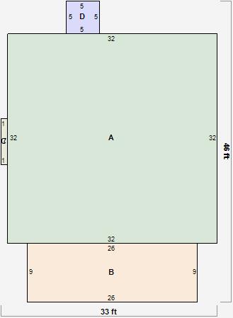
Parcel Sketches
Residential Card 1
A
MAIN
1024 square feet
B
OMP OPEN MASONRY PORCH
234 square feet
C
FROVR FRAME OVERHANG
7 square feet
D
MA STOOP/TERR MAS STOOP
25 square feet