Elected Officials
Courts
Departments
Initiatives
Open Government
About
Login / Register
Home
/
Property & Tax Records
/
Property Records
/
Property & Tax Search
/
Parcel Profile
/
Sketches
Search for Another Parcel
Parcel Profile
Historical Card
Sketches
Photos
Tax Map
Taxes
Print View
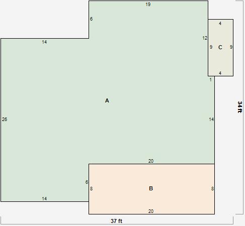
Address: 118 S MAIN ST
Parcel: 42015072001200
Parcel Sketches
Residential Card 1
A
MAIN
872 square feet
B
EFP ENCL FRAME PORCH
160 square feet
C
MA STOOP/TERR MAS STOOP
36 square feet