Elected Officials
Courts
Departments
Initiatives
Open Government
About
Login / Register
Home
/
Property & Tax Records
/
Property Records
/
Property & Tax Search
/
Parcel Profile
/
Sketches
Search for Another Parcel
Parcel Profile
Historical Card
Sketches
Photos
Tax Map
Taxes
Print View
Address: 58 ATLANTIC ST
Parcel: 42015078000500
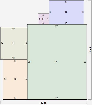
Parcel Sketches
Residential Card 1
A
MAIN
616 square feet
B
OFP OPEN FRAME PORCH EFP ENCL FRAME PORCH
135 square feet
C
1S FR ONE STORY FRAME 1S FR ONE STORY FRAME
120 square feet
D
1S FR ONE STORY FRAME 1S FR ONE STORY FRAME
117 square feet
E
EFP ENCL FRAME PORCH
16 square feet