Elected Officials
Courts
Departments
Initiatives
Open Government
About
Login / Register
Home
/
Property & Tax Records
/
Property Records
/
Property & Tax Search
/
Parcel Profile
/
Sketches
Search for Another Parcel
Parcel Profile
Historical Card
Sketches
Photos
Tax Map
Taxes
Print View
Address: 16 ODELL ST
Parcel: 42016083000200
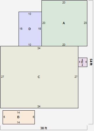
Parcel Sketches
Residential Card 1
A
MAIN
400 square feet
B
OFP OPEN FRAME PORCH
84 square feet
C
1S FR ONE STORY FRAME
918 square feet
D
WDDCK WOOD DECKS
150 square feet
E
OFP OPEN FRAME PORCH
16 square feet