Elected Officials
Courts
Departments
Initiatives
Open Government
About
Login / Register
Home
/
Property & Tax Records
/
Property Records
/
Property & Tax Search
/
Parcel Profile
/
Sketches
Search for Another Parcel
Parcel Profile
Historical Card
Sketches
Photos
Tax Map
Taxes
Print View
Address: 15671 OLD WATTSBURG RD
Parcel: 43003010004600
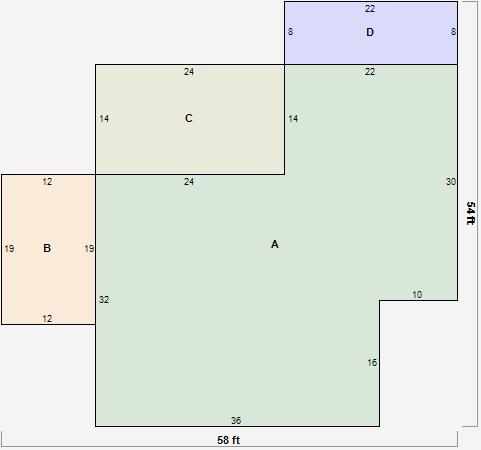
Parcel Sketches
Residential Card 1
A
MAIN
1620 square feet
B
EFP ENCL FRAME PORCH
228 square feet
C
FR GR FRAME GARAGE
336 square feet
D
OFP OPEN FRAME PORCH
176 square feet