Elected Officials
Courts
Departments
Initiatives
Open Government
About
Login / Register
Home
/
Property & Tax Records
/
Property Records
/
Property & Tax Search
/
Parcel Profile
/
Sketches
Search for Another Parcel
Parcel Profile
Historical Card
Sketches
Photos
Tax Map
Taxes
Print View
Address: 9300 ROUTE 6
Parcel: 43007010002500
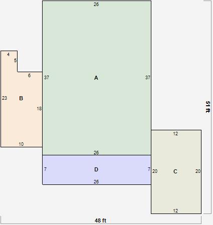
Parcel Sketches
Residential Card 1
A
MAIN
962 square feet
B
1S FR ONE STORY FRAME
200 square feet
C
FR GR FRAME GARAGE
240 square feet
D
EFP ENCL FRAME PORCH
182 square feet