Elected Officials
Courts
Departments
Initiatives
Open Government
About
Login / Register
Home
/
Property & Tax Records
/
Property Records
/
Property & Tax Search
/
Parcel Profile
/
Sketches
Search for Another Parcel
Parcel Profile
Historical Card
Sketches
Photos
Tax Map
Taxes
Print View
Address: 9211 CONCORD RD
Parcel: 43013040000201
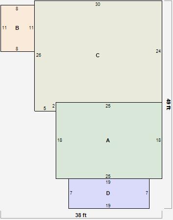
Parcel Sketches
Residential Card 1
A
MAIN
450 square feet
B
OFP OPEN FRAME PORCH
88 square feet
C
UNFIN BSMT BASEMENT UNFINISHED 1S FR ONE STORY FRAME
730 square feet
D
OFP OPEN FRAME PORCH
133 square feet