Elected Officials
Courts
Departments
Initiatives
Open Government
About
Login / Register
Home
/
Property & Tax Records
/
Property Records
/
Property & Tax Search
/
Parcel Profile
/
Sketches
Search for Another Parcel
Parcel Profile
Historical Card
Sketches
Photos
Tax Map
Taxes
Print View
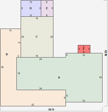
Address: 17419 ONEIL RD
Parcel: 43015046000100
Parcel Sketches
Residential Card 1
A
MAIN
816 square feet
B
1S FR ONE STORY FRAME
524 square feet
C
UNFIN BSMT BASEMENT UNFINISHED 1S FR ONE STORY FRAME 1/2FR FRAME HALF-STORY
320 square feet
D
MA_PT CONC/MAS PATIO
80 square feet
E
EFP ENCL FRAME PORCH
48 square feet
F
FR UT FRAME UTILITY BUILDING
24 square feet