Elected Officials
Courts
Departments
Initiatives
Open Government
About
Login / Register
Home
/
Property & Tax Records
/
Property Records
/
Property & Tax Search
/
Parcel Profile
/
Sketches
Search for Another Parcel
Parcel Profile
Historical Card
Sketches
Photos
Tax Map
Taxes
Print View
Address: 17325 LINCOLNVILLE 41.34 AC
Parcel: 43019053000900
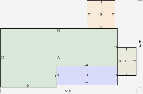
Parcel Sketches
Residential Card 1
A
MAIN
1016 square feet
B
GRNHS ATTACHED GREENHOUSE
144 square feet
C
OFP OPEN FRAME PORCH
96 square feet
D
OFP OPEN FRAME PORCH
208 square feet