Elected Officials
Courts
Departments
Initiatives
Open Government
About
Login / Register
Home
/
Property & Tax Records
/
Property Records
/
Property & Tax Search
/
Parcel Profile
/
Sketches
Search for Another Parcel
Parcel Profile
Historical Card
Sketches
Photos
Tax Map
Taxes
Print View
Address: 11772 ROUTE 89
Parcel: 44003007000800
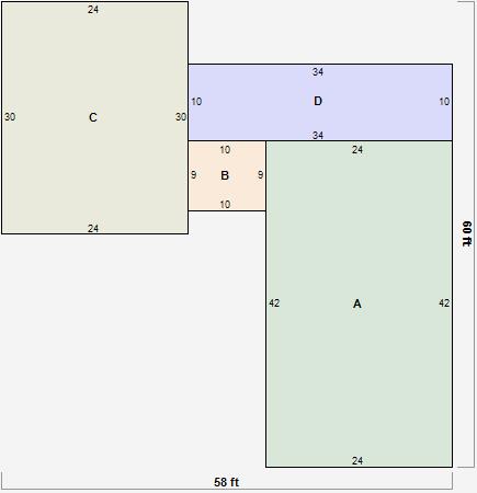
Parcel Sketches
Residential Card 1
A
MAIN
1008 square feet
B
EFP ENCL FRAME PORCH
90 square feet
C
FR GR FRAME GARAGE
720 square feet
D
EFP ENCL FRAME PORCH
340 square feet