Elected Officials
Courts
Departments
Initiatives
Open Government
About
Login / Register
Home
/
Property & Tax Records
/
Property Records
/
Property & Tax Search
/
Parcel Profile
/
Sketches
Search for Another Parcel
Parcel Profile
Historical Card
Sketches
Photos
Tax Map
Taxes
Print View
Address: 13433 ROUTE 8
Parcel: 44014026001200
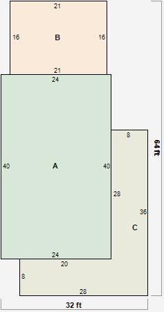
Parcel Sketches
Residential Card 1
A
MAIN
960 square feet
B
1S FR ONE STORY FRAME
336 square feet
C
OFP OPEN FRAME PORCH
448 square feet