Elected Officials
Courts
Departments
Initiatives
Open Government
About
Login / Register
Home
/
Property & Tax Records
/
Property Records
/
Property & Tax Search
/
Parcel Profile
/
Sketches
Search for Another Parcel
Parcel Profile
Historical Card
Sketches
Photos
Tax Map
Taxes
Print View
Address: 11010 EDINBORO RD
Parcel: 45001002001600
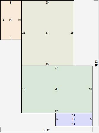
Parcel Sketches
Residential Card 1
A
MAIN
486 square feet
B
FR UT FRAME UTILITY BUILDING
120 square feet
C
1S FR ONE STORY FRAME
500 square feet
D
EFP ENCL FRAME PORCH
70 square feet