Elected Officials
Courts
Departments
Initiatives
Open Government
About
Login / Register
Home
/
Property & Tax Records
/
Property Records
/
Property & Tax Search
/
Parcel Profile
/
Sketches
Search for Another Parcel
Parcel Profile
Historical Card
Sketches
Photos
Tax Map
Taxes
Print View
Address: 5430 OLD STATE RD
Parcel: 45001002003200
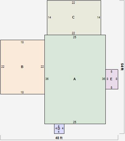
Parcel Sketches
Residential Card 1
A
MAIN
900 square feet
B
1S FR ONE STORY FRAME
396 square feet
C
OFP OPEN FRAME PORCH
308 square feet
D
OFP OPEN FRAME PORCH
16 square feet
E
OFP OPEN FRAME PORCH
40 square feet