Elected Officials
Courts
Departments
Initiatives
Open Government
About
Login / Register
Home
/
Property & Tax Records
/
Property Records
/
Property & Tax Search
/
Parcel Profile
/
Sketches
Search for Another Parcel
Parcel Profile
Historical Card
Sketches
Photos
Tax Map
Taxes
Print View
Address: 5630 CRANE RD
Parcel: 45007011001400
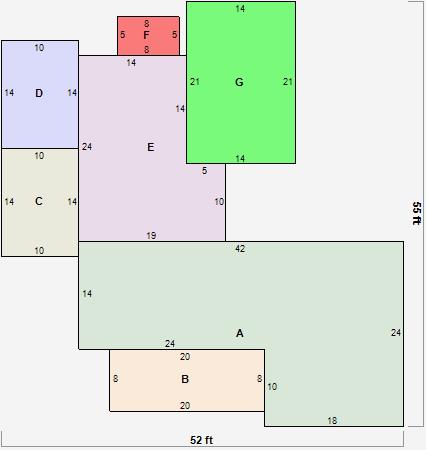
Parcel Sketches
Residential Card 1
A
MAIN
768 square feet
B
OFP OPEN FRAME PORCH
160 square feet
C
OFP OPEN FRAME PORCH
140 square feet
D
WDDCK WOOD DECKS
140 square feet
E
1S FR ONE STORY FRAME
386 square feet
F
EFP ENCL FRAME PORCH
40 square feet
G
FR GR FRAME GARAGE
294 square feet