Elected Officials
Courts
Departments
Initiatives
Open Government
About
Login / Register
Home
/
Property & Tax Records
/
Property Records
/
Property & Tax Search
/
Parcel Profile
/
Sketches
Search for Another Parcel
Parcel Profile
Historical Card
Sketches
Photos
Tax Map
Taxes
Print View
Address: 12331 HAMILTON RD
Parcel: 45009015001701
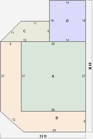
Parcel Sketches
Residential Card 1
A
MAIN
675 square feet
B
OFP OPEN FRAME PORCH
444 square feet
C
WDDCK WOOD DECKS
120 square feet
D
1S FR ONE STORY FRAME
224 square feet