Elected Officials
Courts
Departments
Initiatives
Open Government
About
Login / Register
Home
/
Property & Tax Records
/
Property Records
/
Property & Tax Search
/
Parcel Profile
/
Sketches
Search for Another Parcel
Parcel Profile
Historical Card
Sketches
Photos
Tax Map
Taxes
Print View
Address: 6661 ROUTE 6N
Parcel: 45020042000602
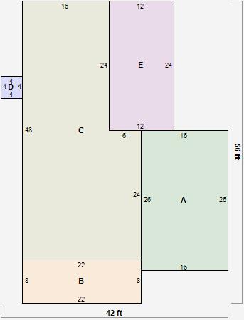
Parcel Sketches
Residential Card 1
A
MAIN
416 square feet
B
EFP ENCL FRAME PORCH
176 square feet
C
UNFIN BSMT BASEMENT UNFINISHED 1S FR ONE STORY FRAME
912 square feet
D
MA STOOP/TERR MAS STOOP
16 square feet
E
EFP ENCL FRAME PORCH
288 square feet