Elected Officials
Courts
Departments
Initiatives
Open Government
About
Login / Register
Home
/
Property & Tax Records
/
Property Records
/
Property & Tax Search
/
Parcel Profile
/
Sketches
Search for Another Parcel
Parcel Profile
Historical Card
Sketches
Photos
Tax Map
Taxes
Print View
Address: 13491 RTE
Parcel: 45024060000400
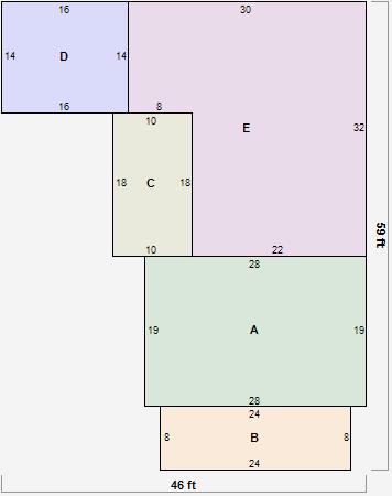
Parcel Sketches
Residential Card 1
A
MAIN
532 square feet
B
MA STOOP/TERR MAS STOOP
192 square feet
C
OFP OPEN FRAME PORCH
180 square feet
D
EFP ENCL FRAME PORCH
224 square feet
E
1S FR ONE STORY FRAME
816 square feet