Elected Officials
Courts
Departments
Initiatives
Open Government
About
Login / Register
Home
/
Property & Tax Records
/
Property Records
/
Property & Tax Search
/
Parcel Profile
/
Sketches
Search for Another Parcel
Parcel Profile
Historical Card
Sketches
Photos
Tax Map
Taxes
Print View
Address: 5166 FLOREK RD
Parcel: 45031073000707
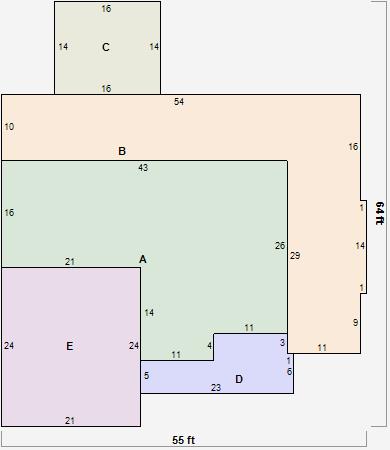
Parcel Sketches
Residential Card 1
A
MAIN
952 square feet
B
1S FR ONE STORY FRAME
873 square feet
C
OFP OPEN FRAME PORCH
224 square feet
D
OFP OPEN FRAME PORCH
160 square feet
E
FR GR FRAME GARAGE AT UN ATTIC-UNFINISHED
504 square feet
F
UNFIN BSMT BASEMENT UNFINISHED 1S FR ONE STORY FRAME
-128 square feet